8000 gpm Waste Volume Batch Treatment System - BT Series
8000 gpm Waste Volume Batch Treatment System - BT Series
SKU:BTS-9eb00a
Efficiently treat complex wastes with the 8000 gpm Batch Treatment System - BT Series. Scalable, versatile, and ready for diverse industrial applications.
Regular price
$55,000.00
Regular price
Sale price
$55,000.00
Unit price
per
Delivery via Maden
Expect your order to arrive on time.
Secure Payments
All orders are processed through a secure, PCI-compliant checkout.


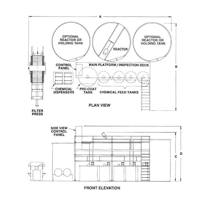
The 8000 Gallon Per Minute (gpm) Waste Volume Batch Treatment System from the BT Series is a state-of-the-art solution for treating complicated and variable wastes in segregated batches. With fully integrated controls and versatile programming options, this system offers scalability and flexibility. Its robust design can handle a wide variety of wastes from different industrial applications. Engineered by DMP, this turnkey modular system arrives pre-engineered and thoroughly tested for quick on-site deployment, ensuring efficient waste management processes.
Product Specifications
Additional Information
DMP's turnkey modular design approach means our systems arrive onsite pre-engineered and thoroughly tested so the time from order to production is as short as possible.Designed to manage a wide variety of wastes from any number of industrial applications.
Dimensions Dimension A
45 ft
Dimensions Dimension B
25 ft 6 in.
Dimensions Dimension C
14 ft 6 in.
Dimensions Dimension D
16 ft
Features
FlexibilityScalability
Specifications Waste Volume
8000 gpm