DMP 3000 gpm Waste Volume Batch Treatment System - BT Series
DMP 3000 gpm Waste Volume Batch Treatment System - BT Series
SKU:BTS-9ce98f
Efficiently treat complex wastes with DMP's 3000 gpm Batch Treatment System - BT Series. Scalable, precise, and compliant.
Regular price
$29,999.00
Regular price
Sale price
$29,999.00
Unit price
per
Delivery via Maden
Expect your order to arrive on time.
Secure Payments
All orders are processed through a secure, PCI-compliant checkout.


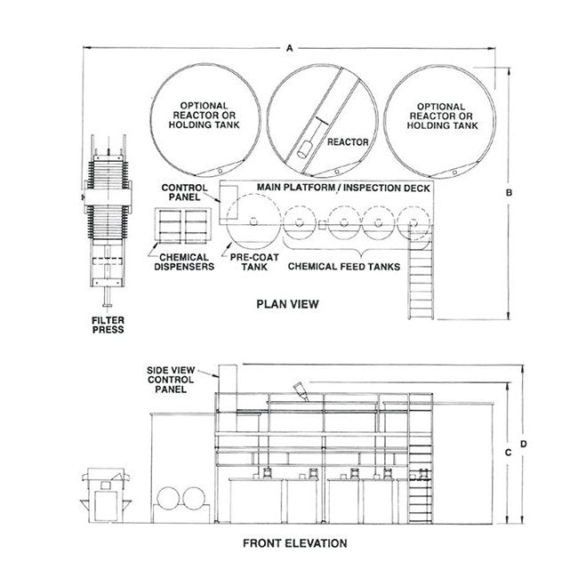
The DMP 3000 Gallon Per Minute (gpm) Waste Volume Batch Treatment System from the BT Series is engineered to handle complicated and variable wastes in segregated batches with precision. This fully integrated system offers versatile programming and automation options, ensuring efficient waste management. Its modular, expandable design allows for scalability, while the robust construction caters to a wide range of waste types. DMP's turnkey modular approach ensures quick deployment and reliable performance, making it ideal for industrial applications requiring efficient and compliant waste treatment solutions.
Product Specifications
Additional Information
DMP's turnkey modular design approach means our systems arrive onsite pre-engineered and thoroughly tested so the time from order to production is as short as possible.Designed to manage a wide variety of wastes from any number of industrial applications.
Dimensions Dimension A
25 ft
Dimensions Dimension B
15 ft 6 in.
Dimensions Dimension C
12 ft
Dimensions Dimension D
13 ft 6 in.
Features
FlexibilityScalability
Specifications Waste Volume
3000 gpm