Unilok 1/16 Tube Fitting x 1/16 MNPT Male Connector
Unilok 1/16 Tube Fitting x 1/16 MNPT Male Connector
SKU:SHI-4dcec9
High-quality Unilok 1/16 Tube Fitting x 1/16 MNPT Male Connector crafted from 316 stainless steel for reliable performance in instrumentation systems.
Regular price
$15.72
Regular price
Sale price
$15.72
Unit price
per
Delivery via Maden
Expect your order to arrive on time.
Secure Payments
All orders are processed through a secure, PCI-compliant checkout.


The Unilok 1/16 Tube Fitting x 1/16 MNPT Male Connector is expertly crafted from 316 stainless steel, ensuring durability and reliability. This male connector is designed for seamless integration into instrumentation systems, offering a secure Tube Fitting x MNPT connection. With precise dimensions and a straight shape, it guarantees a perfect fit. Ideal for various applications, this connector meets stringent industry standards, making it a trusted choice for both consumer and institutional buyers.
Product Specifications
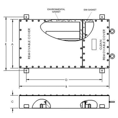
Enclosure Enclosure
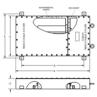
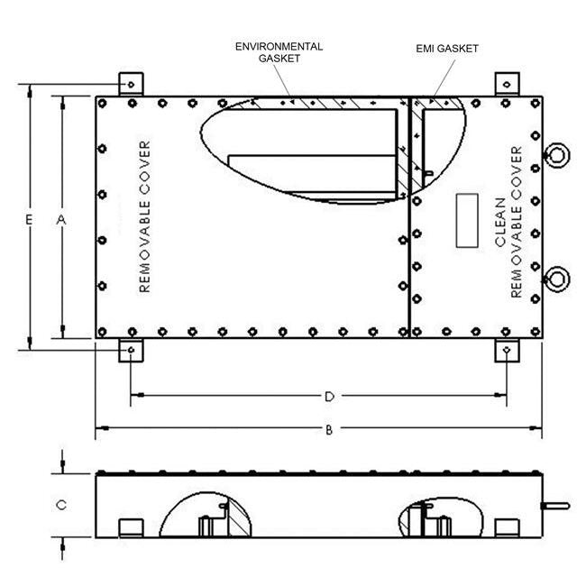
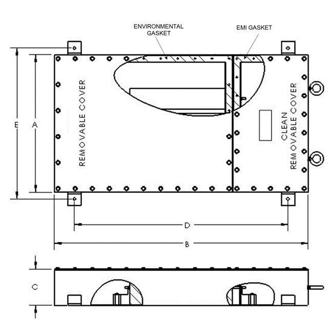
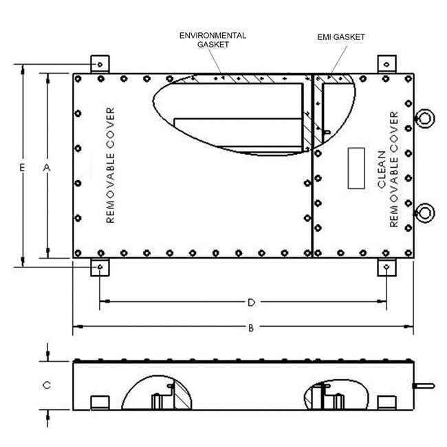
Modified: NEMA 1 type enclosureCabinet Material: Stainless Steel constructionFilter insert case material: Cold rolled steel construction with a corrosion resistant platingEpoxy paint optionalShielding effectiveness measured on clean side greater than 100 dB from 14 KHz or 100 KHz to 10 GHzDual removable access covers
Note Note
When installed with best grounding practice, additional shielding and Isolation between input and output compartmentsSpecifications subject to changeCabinet Supplied with Filter Inserts, 50 to 800 Amps 2, 3 and 4 Power Line filters Installed
Size Size A
34.0 in
Size Size B
28.0 in
Size Size C
8.0 in
Size Size D
18.0 in
Size Size E
35.0 in
Specifications Alternating Current Ac Voltage At 60 Hertz Hz
270 V | 480 V
Specifications Current Rating
200 A
Specifications Dielectric Withstanding Voltage
2250 VDC line-to-chassis per MIL-STD-202, Method 301 prior to installation of discharge resistor
Specifications Estimated Weight
300 lb
Specifications Filter Type
Standard Performance Filter
Specifications Insertion Loss
Measured per MIL-STD-220
Specifications Insulation Resistance
Per MIL-PRF-15733, prior to discharge resistor installation.
Specifications Number Of Lines
4
Specifications Operating Temperature
-40 to +65 ºC
Specifications Storage Temperature
-55 to +105 ºC
Specifications Voltage Discharge
Discharge to less than 30 Volts within 30s after removal of power
Specifications Voltage Drop
Less than 1% of rated voltage per paragraph 4.6.8 of MIL-PRF-15733