Unilok Brass Male Connector, 1/16 Tube Fitting x 1/4-18 MNPT
Unilok Brass Male Connector, 1/16 Tube Fitting x 1/4-18 MNPT
SKU:HEM-d76ade
High-quality Unilok Brass Male Connector for precise instrumentation tube fitting, 1/16 Tube x 1/4-18 MNPT.
Regular price
$9.82
Regular price
Sale price
$9.82
Unit price
per
Delivery via Maden
Expect your order to arrive on time.
Secure Payments
All orders are processed through a secure, PCI-compliant checkout.

The Unilok Brass Male Connector is a high-quality tube fitting designed for precision and durability. Made of brass, it ensures reliable connections with a 1/16-inch tube fitting and a 1/4-18 MNPT. With a straight shape and end connections TF x MNPT, this connector is ideal for instrumentation applications. Its dimensions (A: 1.22 in, C: 0.43 in, D: 0.34 in, E: 0.05 in) offer precise fitting, meeting industry standards and ensuring efficiency in fluid systems.
Product Specifications
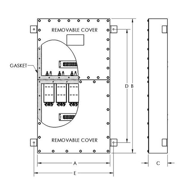
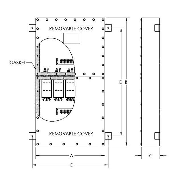
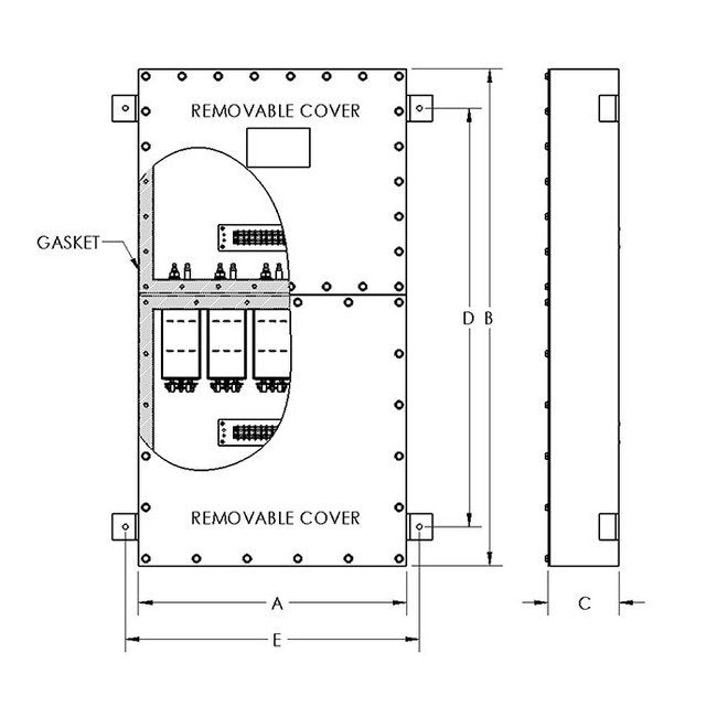
Dimensions Dimension A
47.0 in
Dimensions Dimension B
28.0 in
Dimensions Dimension C
23.0 in
Dimensions Dimension D
22.0 in
Dimensions Dimension E
49.0 in
Enclosure Enclosure
Modified NEMA 1 type enclosureStainless Steel constructionEpoxy paint optionalShielding Effectiveness on protected side greater than 100 dB up to 10 GHzSupplied with push pin terminal blocks or screw type terminal blocks Alternate mounting availableCaptor can supply just the cabinet or the cabinet with various filter inserts installed in accordance with your requirements
Filter Options Filter Options
Captor offers multiple filter inserts designed to meet MIL-188-125 HEMP requirementsA-10358, A-10366 are 2.00" x 3.00" filter inserts that will fit into the C-10431 cabinet
Note Note
Specifications subject to change.
Specifications Application
For Use with 2.00" x 3.00" Filter Inserts
Specifications Enclosure Standards
NEMA 1
Specifications Estimated Empty Cabinet Weight
170 lb
Specifications Maximum Number Of 2 Circuit Filter Inserts
100