Unilok Female Connector 1/2 Tube Fitting x 1/4-18 FNPT, Alloy 400
Unilok Female Connector 1/2 Tube Fitting x 1/4-18 FNPT, Alloy 400
SKU:HEM-a9b018
Unilok Female Connector - Alloy 400, 1/2 Tube Fitting x 1/4-18 FNPT. Reliable, Leak-Free Connection.
Regular price
$29.99
Regular price
Sale price
$29.99
Unit price
per
Delivery via Maden
Expect your order to arrive on time.
Secure Payments
All orders are processed through a secure, PCI-compliant checkout.

Upgrade your instrumentation setup with the Unilok Female Connector. Crafted from durable Alloy 400, this straight-shaped connector ensures a secure and leak-free connection. With a 1/2 inch tube fitting and 1/4-18 FNPT size, it guarantees precision and compatibility. The Unilok series is renowned for its quality and reliability, making it an ideal choice for industrial applications.
Product Specifications
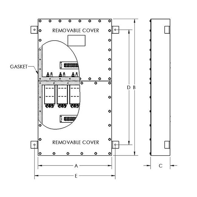
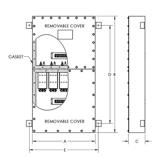
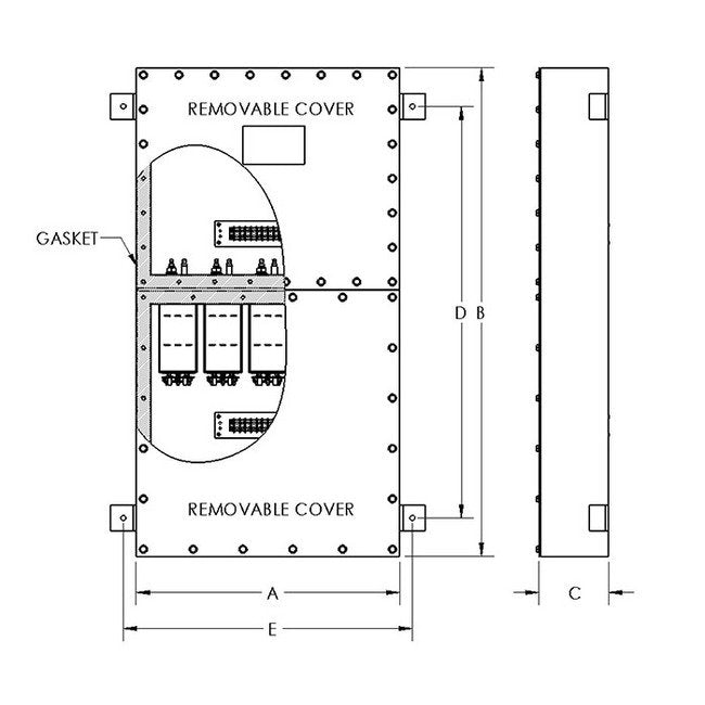
Dimensions Dimension A
32.0 in
Dimensions Dimension B
26.0 in
Dimensions Dimension C
12.0 in
Dimensions Dimension D
20.0 in
Dimensions Dimension E
34.0 in
Enclosure Enclosure
Modified NEMA 1 type enclosureStainless Steel constructionEpoxy paint optionalShielding Effectiveness on protected side greater than 100 dB up to 10 GHzSupplied with push pin terminal blocks or screw type terminal blocks Alternate mounting availableCaptor can supply just the cabinet or the cabinet with various filter inserts installed in accordance with your requirements
Filter Options Filter Options
Captor offers multiple filter inserts designed to meet MIL-188-125 HEMP requirementsA-10357, A-10362, A-10365 and A-10370 are 1.50" x 2.50" filter inserts that will fit into the C-10430 cabinet
Note Note
Specifications subject to change.
Specifications Application
For Use with 1.50" x 2.50" Filter Inserts
Specifications Enclosure Standards
NEMA 1
Specifications Estimated Empty Cabinet Weight
85 lb
Specifications Maximum Number Of 2 Circuit Filter Inserts
50