Unilok Female Connector - 3/8 Tube x 1/2-14 FNPT, Alloy 400
Unilok Female Connector - 3/8 Tube x 1/2-14 FNPT, Alloy 400
SKU:HEM-4aa7c6
Precision-engineered Unilok Female Connector - Alloy 400, 3/8 Tube x 1/2-14 FNPT. Corrosion-resistant and reliable for instrumentation applications.
Regular price
$29.99
Regular price
Sale price
$29.99
Unit price
per
Delivery via Maden
Expect your order to arrive on time.
Secure Payments
All orders are processed through a secure, PCI-compliant checkout.

The Unilok Female Connector is a precision-engineered tube fitting designed to ensure secure and leak-free connections in instrumentation applications. Made of durable Alloy 400, this connector features a 3/8-inch tube fitting connected to a 1/2-14 FNPT, offering exceptional corrosion resistance and reliable performance. With straight shape design, it provides ease of installation and maintenance, meeting the stringent requirements of government and institutional procurement standards.
Product Specifications
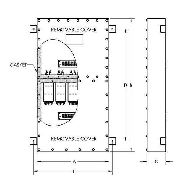
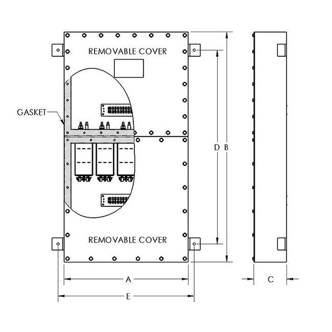
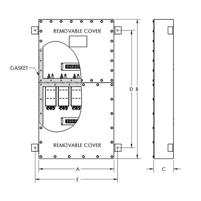
Dimensions Dimension A
20.5 in
Dimensions Dimension B
24.0 in
Dimensions Dimension C
13.25 in
Dimensions Dimension D
18.0 in
Dimensions Dimension E
22.5 in
Enclosure Enclosure
Modified NEMA 1 type enclosureStainless Steel constructionEpoxy paint optionalShielding Effectiveness on protected side greater than 100 dB up to 10 GHzSupplied with push pin terminal blocks or screw type terminal blocks Alternate mounting availableCaptor can supply just the cabinet or the cabinet with various filter inserts installed in accordance with your requirements
Filter Options Filter Options
Captor offers multiple filter inserts designed to meet MIL-188-125 HEMP requirementsA-10358, A-10366 are 2.00" x 3.00" filter inserts that will fit into the C-10431 cabinet
Note Note
Specifications subject to change.
Specifications Application
For Use with 2.00" x 3.00" Filter Inserts
Specifications Enclosure Standards
NEMA 1
Specifications Estimated Empty Cabinet Weight
65 lb
Specifications Maximum Number Of 2 Circuit Filter Inserts
25