Unilok Female Connector, 5/16 Tube Fitting x 1/4-18 FNPT, Alloy 400
Unilok Female Connector, 5/16 Tube Fitting x 1/4-18 FNPT, Alloy 400
SKU:HEM-bb6049
High-quality Unilok Female Connector in Alloy 400 for secure tube fitting applications. Precision-made for reliability and performance.
Regular price
$39.99
Regular price
Sale price
$39.99
Unit price
per
Delivery via Maden
Expect your order to arrive on time.
Secure Payments
All orders are processed through a secure, PCI-compliant checkout.

The Unilok Female Connector in Alloy 400 is a robust tube fitting that ensures secure connections for critical applications. With a Connection 1 Size of 5/16 in and Connection 2 Size of 1/4 in, this Connector is designed for precision and reliability. Its straight Shape and TF x FNPT End Connections make it versatile for various instrumentation setups. Meeting stringent industry standards, this connector guarantees durability and performance under pressure.
Product Specifications
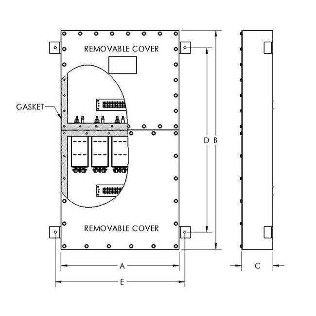
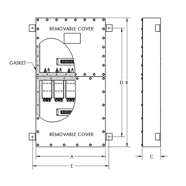
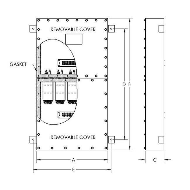
Dimensions Dimension A
32.0 in
Dimensions Dimension B
26.0 in
Dimensions Dimension C
9.5 in
Dimensions Dimension D
20.0 in
Dimensions Dimension E
34.0 in
Enclosure Enclosure
Modified NEMA 1 type enclosureStainless Steel constructionEpoxy paint optionalShielding Effectiveness on protected side greater than 100 dB up to 10 GHzSupplied with push pin terminal blocks or screw type terminal blocks Alternate mounting availableCaptor can supply just the cabinet or the cabinet with various filter inserts installed in accordance with your requirements
Filter Options Filter Options
Captor offers multiple filter inserts designed to meet MIL-188-125 HEMP requirementsA-8181, A-9599, A-10356, A-10360, A-10361, A-10364, A-10368 and A-10369 are 1.25" x 2.50" filter inserts that will fit into the C-10429 cabinet
Note Note
Specifications subject to change.
Specifications Application
For Use with 1.25" x 2.50" Filter Inserts
Specifications Enclosure Standards
NEMA 1
Specifications Estimated Empty Cabinet Weight
80 lb
Specifications Maximum Number Of 2 Circuit Filter Inserts
50