Unilok Female Connector, Alloy 400, 1/2" TF x 3/8" FNPT
Unilok Female Connector, Alloy 400, 1/2" TF x 3/8" FNPT
SKU:HEM-4a01f6
Premium Unilok Female Connector for precise 1/2" TF x 3/8" FNPT connections
Regular price
$24.99
Regular price
Sale price
$24.99
Unit price
per
Delivery via Maden
Expect your order to arrive on time.
Secure Payments
All orders are processed through a secure, PCI-compliant checkout.

The Unilok Female Connector in Alloy 400 is a precision-engineered tube fitting that ensures secure connections. With a 1/2-inch TF and 3/8-inch FNPT, this straight connector is designed for reliability. Its durable material and precise dimensions make it ideal for instrumentation applications, offering superior performance and longevity. Compliant with industry standards, this connector meets the stringent requirements of government and institutional procurement.
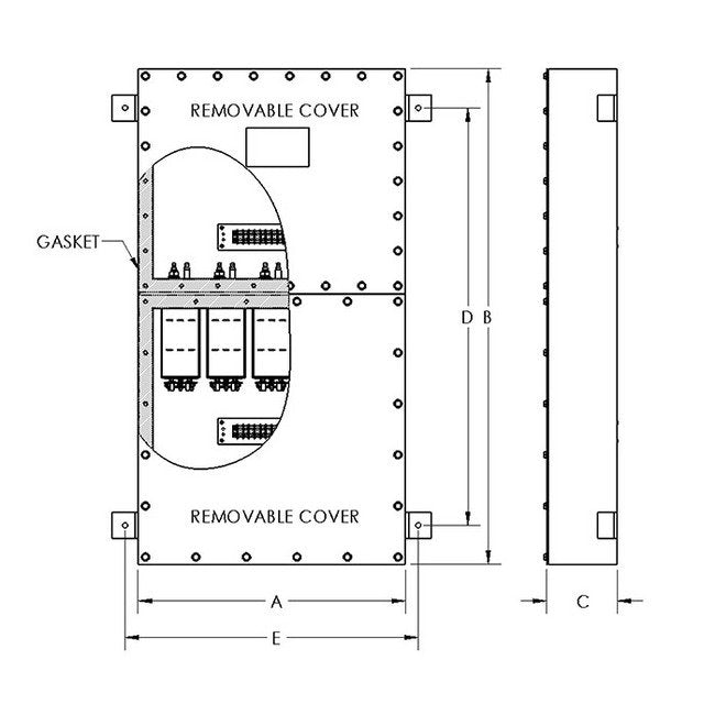
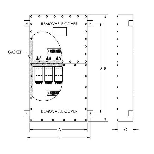
Product Specifications
Dimensions Dimension A
57.5 in
Dimensions Dimension B
32.0 in
Dimensions Dimension C
23.0 in
Dimensions Dimension D
26.0 in
Dimensions Dimension E
59.5 in
Enclosure Enclosure
Modified NEMA 1 type enclosureStainless Steel constructionEpoxy paint optionalShielding Effectiveness on protected side greater than 100 dB up to 10 GHzSupplied with push pin terminal blocks or screw type terminal blocks Alternate mounting availableCaptor can supply just the cabinet or the cabinet with various filter inserts installed in accordance with your requirements
Filter Options Filter Options
Captor offers multiple filter inserts designed to meet MIL-188-125 HEMP requirementsA-10358, A-10366 are 2.00" x 3.00" filter inserts that will fit into the C-10431 cabinet
Note Note
Specifications subject to change.
Specifications Application
For Use with 2.00" x 3.00" Filter Inserts
Specifications Enclosure Standards
NEMA 1
Specifications Estimated Empty Cabinet Weight
215 lb
Specifications Maximum Number Of 2 Circuit Filter Inserts
150