Unilok Female Connector, Alloy 400, 3/8" Tube Fitting x 3/4-14 FNPT
Unilok Female Connector, Alloy 400, 3/8" Tube Fitting x 3/4-14 FNPT
SKU:HEM-6bd288
Secure your institutional tubing with Unilok Female Connector in Alloy 400. Reliable, durable, and compliant with industry standards.
Regular price
$34.99
Regular price
Sale price
$34.99
Unit price
per
Delivery via Maden
Expect your order to arrive on time.
Secure Payments
All orders are processed through a secure, PCI-compliant checkout.

The Unilok Female Connector in Alloy 400 offers reliable tube connections in institutional settings. With a Connection 1 Size of 3/8 in and Connection 2 Size of 3/4 in, this straight-shaped connector ensures secure FNPT connections. Its precision engineering guarantees efficient performance and durability, meeting stringent industry standards for instrumentation tube fittings.
Product Specifications
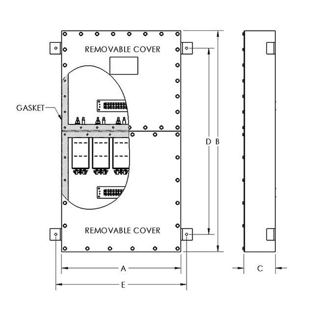
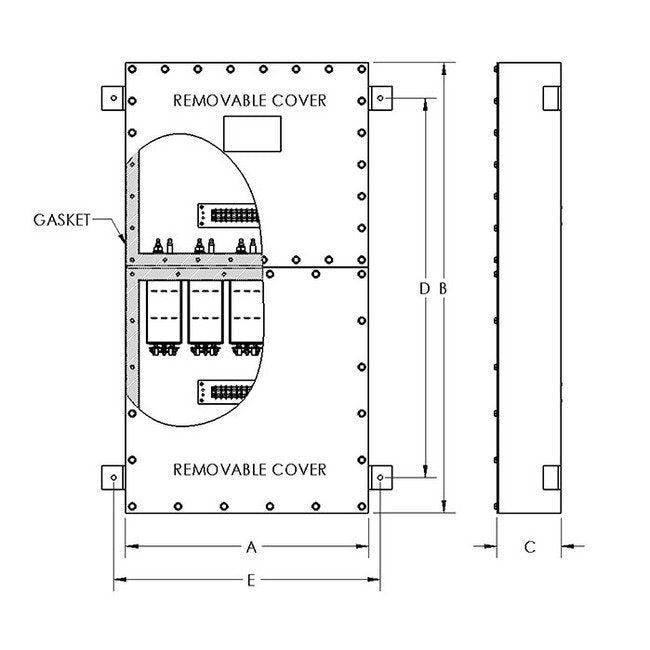
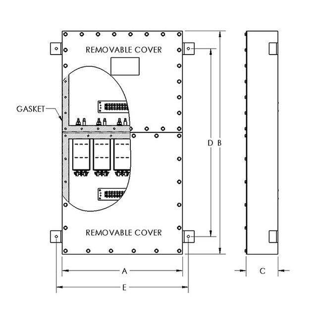
Dimensions Dimension A
50.0 in
Dimensions Dimension B
32.0 in
Dimensions Dimension C
15.5 in
Dimensions Dimension D
26.0 in
Dimensions Dimension E
52.0 in
Enclosure Enclosure
Modified NEMA 1 type enclosureStainless Steel constructionEpoxy paint optionalShielding Effectiveness on protected side greater than 100 dB up to 10 GHzSupplied with push pin terminal blocks or screw type terminal blocks Alternate mounting availableCaptor can supply just the cabinet or the cabinet with various filter inserts installed in accordance with your requirements
Filter Options Filter Options
Captor offers multiple filter inserts designed to meet MIL-188-125 HEMP requirementsA-8181, A-9599, A-10356, A-10360, A-10361, A-10364, A-10368 and A-10369 are 1.25" x 2.50" filter inserts that will fit into the C-10429 cabinet
Note Note
Specifications subject to change.
Specifications Application
For Use with 1.25" x 2.50" Filter Inserts
Specifications Enclosure Standards
NEMA 1
Specifications Estimated Empty Cabinet Weight
170 lb
Specifications Maximum Number Of 2 Circuit Filter Inserts
150