Unilok Female Connector - Alloy C-276, 1/2 in TF x 3/8 in FNPT
Unilok Female Connector - Alloy C-276, 1/2 in TF x 3/8 in FNPT
SKU:HEM-4e48e4
High-quality Unilok Female Connector - Alloy C-276, 1/2 in TF x 3/8 in FNPT for secure, leak-free connections.
Regular price
$39.99
Regular price
Sale price
$39.99
Unit price
per
Delivery via Maden
Expect your order to arrive on time.
Secure Payments
All orders are processed through a secure, PCI-compliant checkout.

The Unilok Female Connector, crafted from Alloy C-276, features a precise 1/2-inch Tube Fitting connected to a 3/8-18 FNPT. With a straight shape, this connector ensures a secure and leak-free connection. Its robust construction and compliance with industry standards make it a reliable choice for various applications.
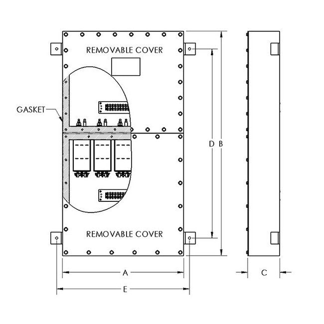
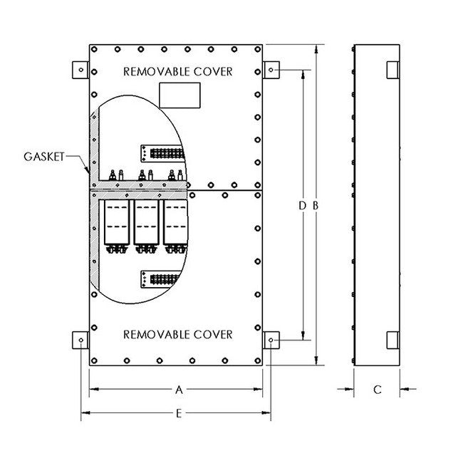
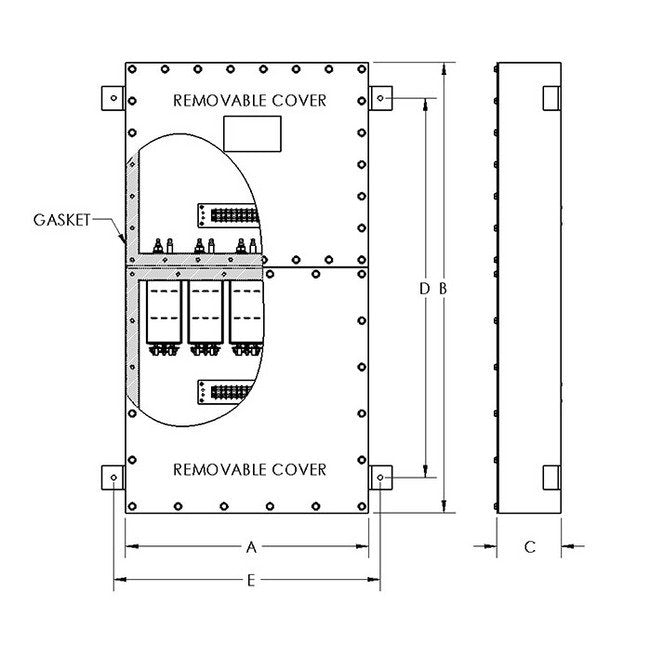
Product Specifications
Dimensions Dimension A
50.0 in
Dimensions Dimension B
32.0 in
Dimensions Dimension C
20.5 in
Dimensions Dimension D
26.0 in
Dimensions Dimension E
52.0 in
Enclosure Enclosure
Modified NEMA 1 type enclosureStainless Steel constructionEpoxy paint optionalShielding Effectiveness on protected side greater than 100 dB up to 10 GHzSupplied with push pin terminal blocks or screw type terminal blocks Alternate mounting availableCaptor can supply just the cabinet or the cabinet with various filter inserts installed in accordance with your requirements
Filter Options Filter Options
Captor offers multiple filter inserts designed to meet MIL-188-125 HEMP requirementsA-10357, A-10362, A-10365 and A-10370 are 1.50" x 2.50" filter inserts that will fit into the C-10430 cabinet
Note Note
Specifications subject to change.
Specifications Application
For Use with 1.50" x 2.50" Filter Inserts
Specifications Enclosure Standards
NEMA 1
Specifications Estimated Empty Cabinet Weight
180 lb
Specifications Maximum Number Of 2 Circuit Filter Inserts
150