Unilok Female Connector - Alloy C-276 Tube Fitting
Unilok Female Connector - Alloy C-276 Tube Fitting
SKU:HEM-0d0a15
High-quality Unilok Female Connector for secure and leak-free tube connections in instrumentation applications.
Regular price
$39.99
Regular price
Sale price
$39.99
Unit price
per
Delivery via Maden
Expect your order to arrive on time.
Secure Payments
All orders are processed through a secure, PCI-compliant checkout.

The Unilok Female Connector in Alloy C-276 features a 1/2-inch Tube Fitting to 1/2-14 FNPT connection, ensuring secure and leak-free joints in instrumentation applications. Crafted with precision, this straight-shaped connector meets the demanding requirements of industrial systems, offering exceptional corrosion resistance and durability. Trust in the Unilok brand for high-quality fittings that excel in performance and longevity.
Product Specifications
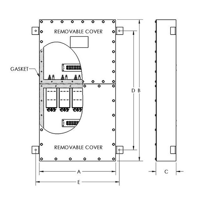
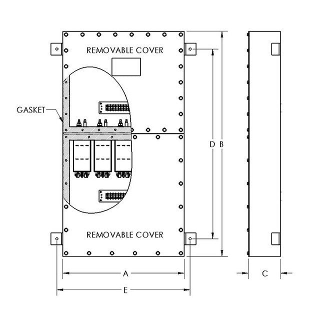
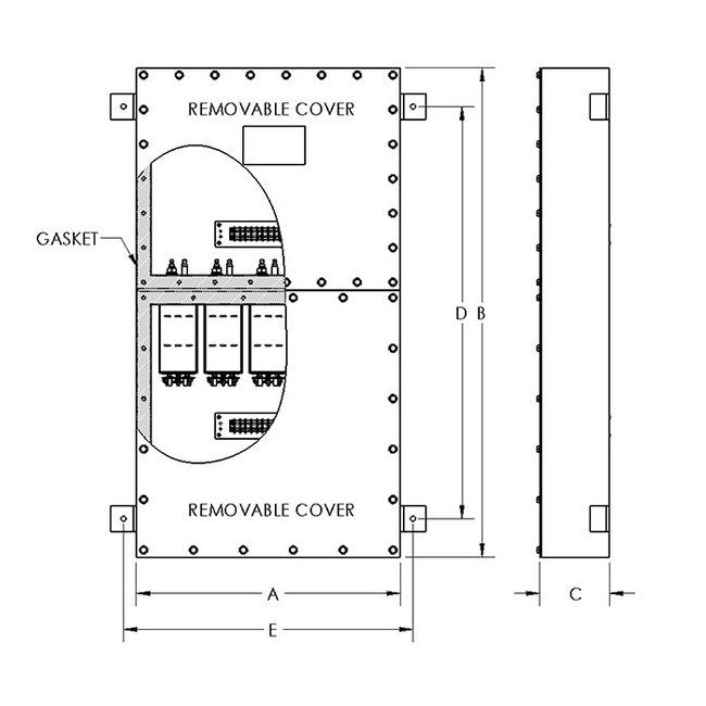
Dimensions Dimension A
18.00 in
Dimensions Dimension B
20.0 in
Dimensions Dimension C
5.5 in
Dimensions Dimension D
14.0 in
Dimensions Dimension E
20.0 in
Enclosure Enclosure
Modified NEMA 1 type enclosureStainless Steel constructionEpoxy paint optionalShielding Effectiveness on protected side greater than 100 dB up to 10 GHzSupplied with push pin terminal blocks or screw type terminal blocks Alternate mounting availableCaptor can supply just the cabinet or the cabinet with various filter inserts installed in accordance with your requirements
Filter Options Filter Options
Captor offers multiple filter inserts designed to meet MIL-188-125 HEMP requirementsA-10357, A-10362, A-10365 and A-10370 are 1.50" x 2.50" filter inserts that will fit into the C-10430 cabinet
Note Note
Specifications subject to change.
Specifications Application
For Use with 1.50" x 2.50" Filter Inserts
Specifications Enclosure Standards
NEMA 1
Specifications Estimated Empty Cabinet Weight
30 lb
Specifications Maximum Number Of 2 Circuit Filter Inserts
10