Unilok Male Connector 1/4 Tube Fitting x 1/8-27 MNPT Brass
Unilok Male Connector 1/4 Tube Fitting x 1/8-27 MNPT Brass
SKU:SHI-11ee23
Premium brass Unilok Male Connector for precise instrumentation needs. 1/4 Tube Fitting x 1/8-27 MNPT, corrosion-resistant, ideal for industrial settings.
Regular price
$4.22
Regular price
Sale price
$4.22
Unit price
per
Delivery via Maden
Expect your order to arrive on time.
Secure Payments
All orders are processed through a secure, PCI-compliant checkout.


The Unilok Male Connector is a premium brass fitting designed for precision instrumentation applications. It features a 1/4-inch tube fitting on one end and a 1/8-27 MNPT connection on the other, ensuring tight and secure connections. With its straight shape and durable brass construction, this connector guarantees reliable performance and resistance to corrosion. Ideal for industrial and institutional settings, this Unilok Male Connector meets stringent quality standards and offers exceptional longevity.
Product Specifications
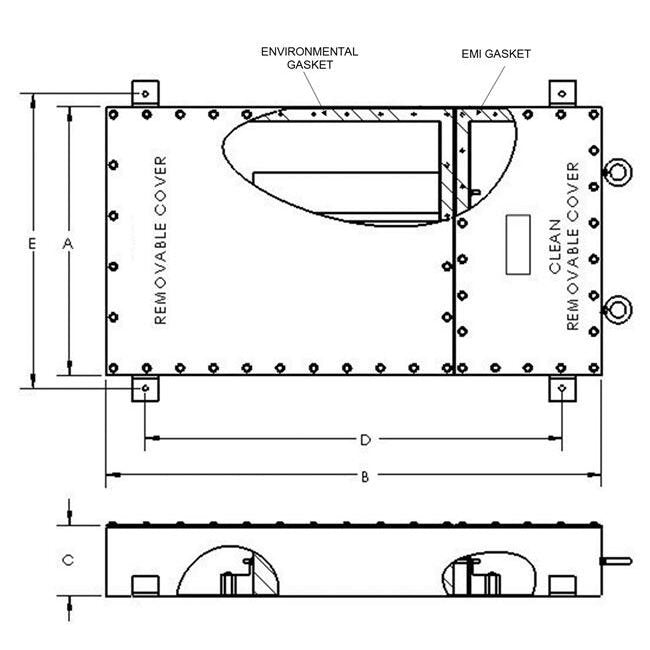
Enclosure Enclosure
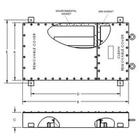
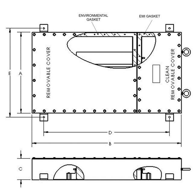
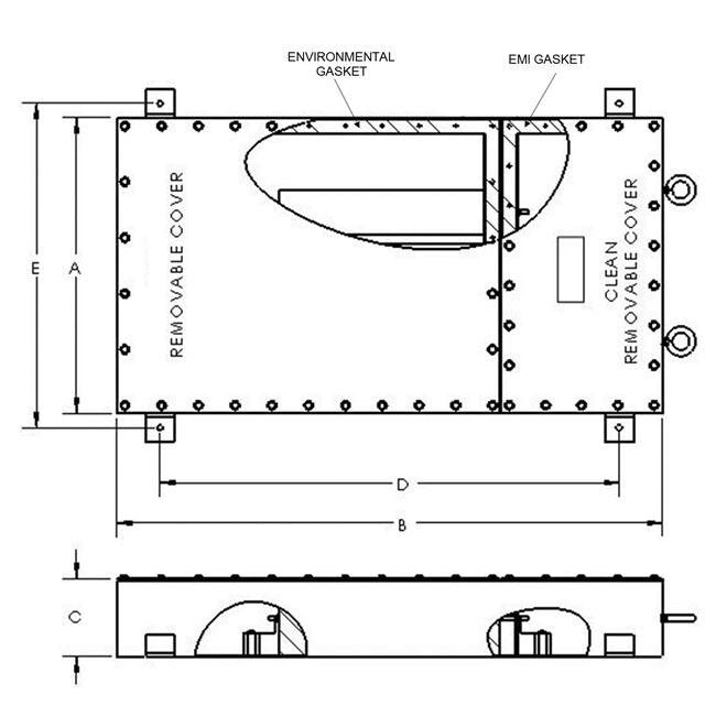
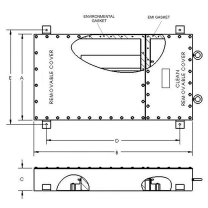
Modified: NEMA 1 type enclosureCabinet Material: Stainless Steel constructionFilter insert case material: Cold rolled steel construction with a corrosion resistant platingEpoxy paint optionalShielding effectiveness measured on clean side greater than 100 dB from 14 KHz or 100 KHz to 10 GHzDual removable access covers
Note Note
When installed with best grounding practice, additional shielding and Isolation between input and output compartmentsSpecifications subject to changeCabinet Supplied with Filter Inserts, 50 to 800 Amps 2, 3 and 4 Power Line filters Installed
Size Size A
33.0 in
Size Size B
34.0 in
Size Size C
8.0 in
Size Size D
24.0 in
Size Size E
34.0 in
Specifications Alternating Current Ac Voltage At 60 Hertz Hz
270 V | 480 V
Specifications Current Rating
200 A
Specifications Dielectric Withstanding Voltage
2250 VDC line-to-chassis per MIL-STD-202, Method 301 prior to installation of discharge resistor
Specifications Estimated Weight
375 lb
Specifications Filter Type
High Performance Filter
Specifications Insertion Loss
Measured per MIL-STD-220
Specifications Insulation Resistance
Per MIL-PRF-15733, prior to discharge resistor installation.
Specifications Number Of Lines
4
Specifications Operating Temperature
-40 to +65 ºC
Specifications Storage Temperature
-55 to +105 ºC
Specifications Voltage Discharge
Discharge to less than 30 Volts within 30s after removal of power
Specifications Voltage Drop
Less than 1% of rated voltage per paragraph 4.6.8 of MIL-PRF-15733