Unilok Male Connector 3/4 Tube Fitting x 1/2-14 MNPT Brass
Unilok Male Connector 3/4 Tube Fitting x 1/2-14 MNPT Brass
SKU:HEM-9aa6e5
Reliable Unilok Male Connector in Brass for precision tube fitting applications.
Regular price
$14.56
Regular price
Sale price
$14.56
Unit price
per
Delivery via Maden
Expect your order to arrive on time.
Secure Payments
All orders are processed through a secure, PCI-compliant checkout.

The Unilok Male Connector in Brass is a reliable and durable instrumentation tube fitting. With a Connection 1 Size of 3/4 in and Connection 2 Size of 1/2 in MNPT, this straight-shaped connector ensures a secure and leak-free connection. Manufactured to meet stringent industry standards, this Unilok Male Connector is perfect for various applications requiring precision and quality.
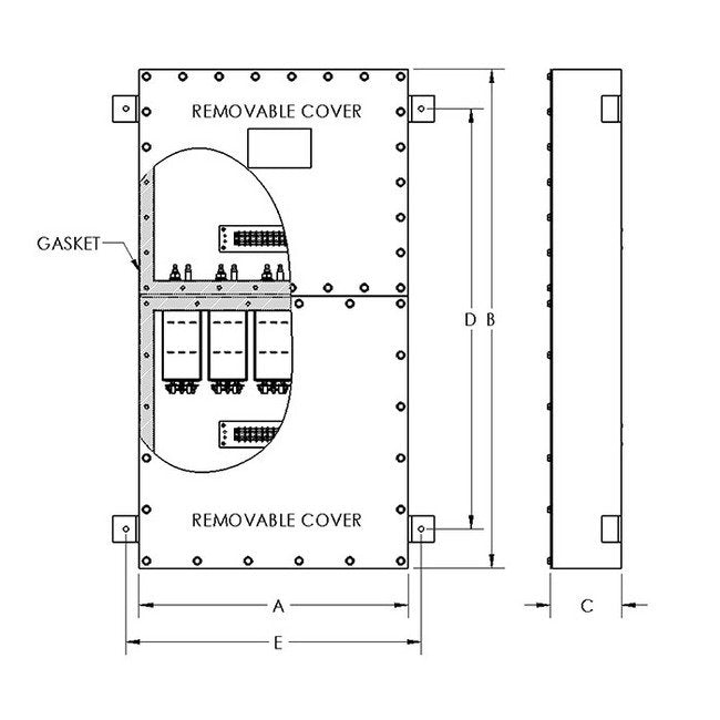
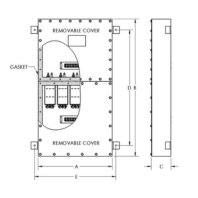
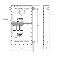
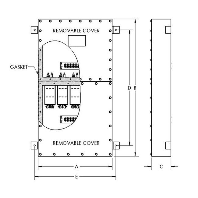
Product Specifications
Dimensions Dimension A
74.0 in
Dimensions Dimension B
34.0 in
Dimensions Dimension C
23.0 in
Dimensions Dimension D
28.0 in
Dimensions Dimension E
76.0 in
Enclosure Enclosure
Modified NEMA 1 type enclosureStainless Steel constructionEpoxy paint optionalShielding Effectiveness on protected side greater than 100 dB up to 10 GHzSupplied with push pin terminal blocks or screw type terminal blocks Alternate mounting availableCaptor can supply just the cabinet or the cabinet with various filter inserts installed in accordance with your requirements
Filter Options Filter Options
Captor offers multiple filter inserts designed to meet MIL-188-125 HEMP requirementsA-10358, A-10366 are 2.00" x 3.00" filter inserts that will fit into the C-10431 cabinet
Note Note
Specifications subject to change.
Specifications Application
For Use with 2.00" x 3.00" Filter Inserts
Specifications Enclosure Standards
NEMA 1
Specifications Estimated Empty Cabinet Weight
270 lb
Specifications Maximum Number Of 2 Circuit Filter Inserts
200