Unilok Male Connector, Brass, 1" Tube Fitting x 3/4-14 MNPT
Unilok Male Connector, Brass, 1" Tube Fitting x 3/4-14 MNPT
SKU:SHI-107576
High-quality Unilok Male Connector in Brass for precise instrumentation tube fittings, 1" x 3/4-14 MNPT.
Regular price
$28.18
Regular price
Sale price
$28.18
Unit price
per
Delivery via Maden
Expect your order to arrive on time.
Secure Payments
All orders are processed through a secure, PCI-compliant checkout.


The Unilok Male Connector in Brass features a 1" Tube Fitting x 3/4-14 MNPT connection, designed for reliable and leak-free performance. Crafted with high-quality Brass, this male connector is ideal for instrumentation tube fittings, ensuring precision and durability in demanding industrial applications. With precise dimensions and a straight shape, this Unilok fitting meets stringent industry standards, making it a trustworthy choice for both consumer and institutional buyers.
Product Specifications
Enclosure Enclosure
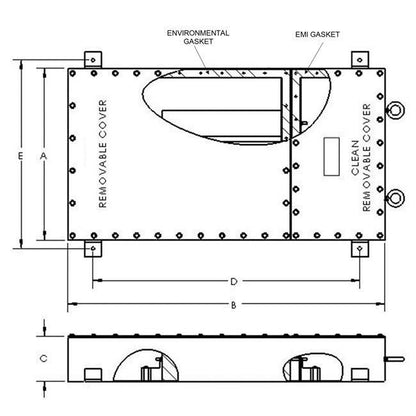
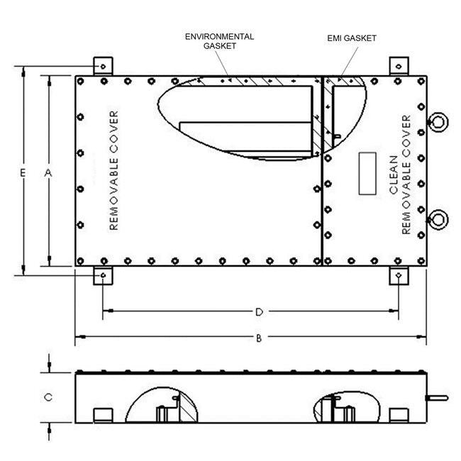
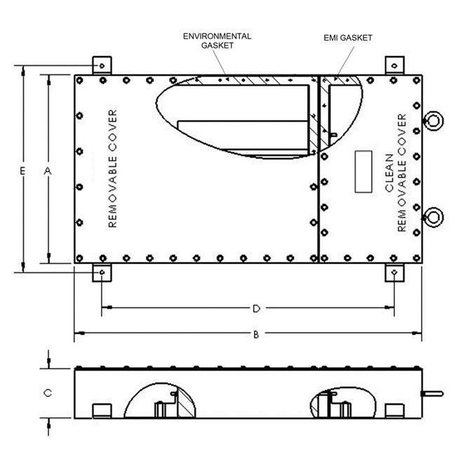
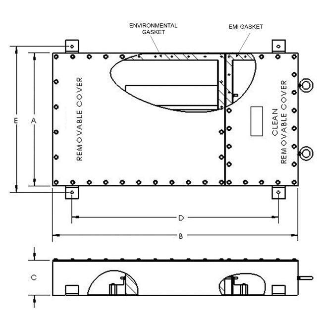
Modified: NEMA 1 type enclosureCabinet Material: Stainless Steel constructionFilter insert case material: Cold rolled steel construction with a corrosion resistant platingEpoxy paint optionalShielding effectiveness measured on clean side greater than 100 dB from 14 KHz or 100 KHz to 10 GHzDual removable access covers
Note Note
When installed with best grounding practice, additional shielding and Isolation between input and output compartmentsSpecifications subject to changeCabinet Supplied with Filter Inserts, 50 to 800 Amps 2, 3 and 4 Power Line filters Installed
Size Size A
13.0 in
Size Size B
28.0 in
Size Size C
7.0 in
Size Size D
18.0 in
Size Size E
14.0 in
Specifications Alternating Current Ac Voltage At 60 Hertz Hz
270 V | 480 V
Specifications Current Rating
50 A
Specifications Dielectric Withstanding Voltage
2250 VDC line-to-chassis per MIL-STD-202, Method 301 prior to installation of discharge resistor
Specifications Estimated Weight
110 lb
Specifications Filter Type
High Performance Filter
Specifications Insertion Loss
Measured per MIL-STD-220
Specifications Insulation Resistance
Per MIL-PRF-15733, prior to discharge resistor installation.
Specifications Number Of Lines
2
Specifications Operating Temperature
-40 to +65 ºC
Specifications Storage Temperature
-55 to +105 ºC
Specifications Voltage Discharge
Discharge to less than 30 Volts within 30s after removal of power
Specifications Voltage Drop
Less than 1% of rated voltage per paragraph 4.6.8 of MIL-PRF-15733